日本三景の天橋立を有する宮津市。最近では日本人だけてなく、外国人の方も数多く来られている海の京都の一つです。観光地として賑わう宮津で、静かに暮らしながら海に近い生活を送れる場所に今回ご紹介する、庭付きの平家物件はあります。収益物件としての利用も可能とのこと。
建てられたのは昭和43年ですが、2023年3月にリフォーム済み。これまで2組の方が賃貸として利用されていました。まだまだ比較的綺麗な状態ですので、心地よく住んでいただけるのではないでしょうか。
広すぎず狭すぎず、ちょうど良い
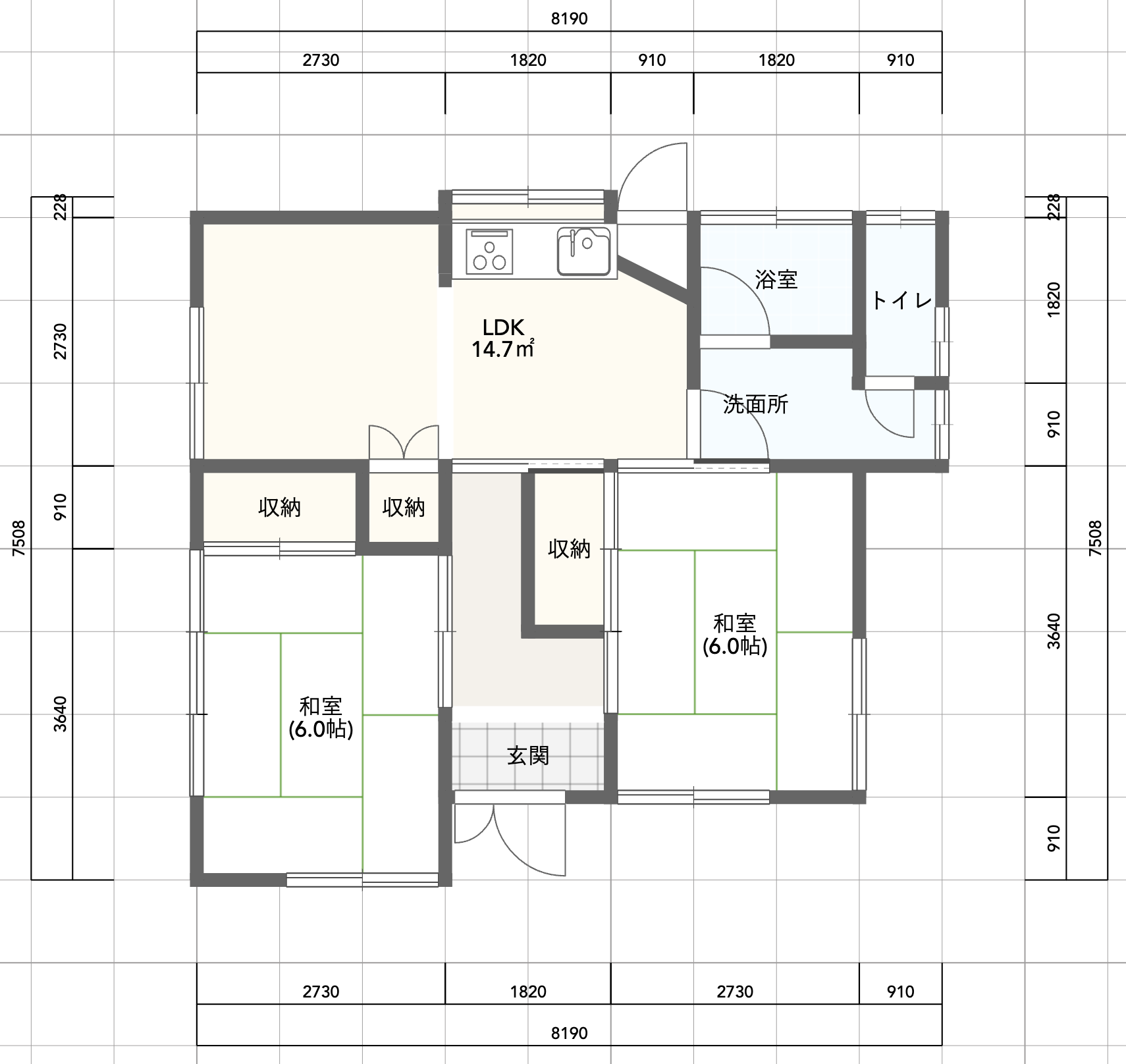
玄関から入ると廊下を挟んで右と左に和室があります。奥に進むと14.7㎡のLDKが。
天井がダクトレールになっているので照明は好きな位置に追加できますね。


昔ながらのすりガラスから差し込む光が楽しみなキッチンです。キッチン横には取手口があるので、つっかけをはいて、家庭菜園用のコンポストにそのまま、野菜くずを運べそう。

リビングの手前には和室が2部屋あり、どちらも6帖の広さで押入れ付きです。
エアコンも2023年に新調され付け替え済み。片方は寝室に片方はダイニングにしてもいいですし、こどものプレイルームにしてもいいですね!


外に出ると、ひさしがあるので洗濯物も良く乾きます。家の前にはこじんまりですが庭になるスペースも。土を入れて小さな家庭菜園を始めるにも良さそうなスペースです。
車も縦列駐車なら2台は停められそうです。

日本の滝百選、京都府唯一の場所
物件のある京都府宮津市滝馬は、美しい自然と豊かな歴史が息づく地域です。実は、京都府で唯一「日本の滝百選」に選ばれている「金引(かなびき)の滝」があり、滝馬の地名の由来にもなっています。
高さ約40m、幅約20mの雄大な滝は、左右に分かれて流れ落ちる様子から「男滝」「女滝」とも呼ばれ、一年を通して豊かな水量を誇ります。古くは修験道の聖地としても崇められ、滝の近くには不動尊が祀られており、その歴史が今も静かに伝えられています。

また車で少し足を延ばせば、様々なグルメや観光スポットを楽しむことができます。天橋立以外にも、「三人寄れば文殊の智恵」で知られる文殊菩薩が祀られている智恩寺があり、海水浴場や温泉施設も複数あります。
何より魚は絶品です。ぜひ、魚の加工品も色々ありますが、イワシが原料の色の濃いちくわ、”宮津ちくわ”も美味しいので食べてみてくださいね。
※物件は360度カメラでもご確認いただけます。
360度カメラで確認
物件写真
物件詳細
| 物件名 | 宮津市滝馬物件 |
|---|---|
| 賃料 | 【売買】550万円(税込)(600万円から値下げしました 2026/3/6) |
| 住所 | 宮津市滝馬96-8 |
| 交通 | ・丹海バス「宮津・天橋立インター」バス停 徒歩5分 ・宮津天橋立IC 車で1分 |
| 面積 | 建物面積:54.82㎡ 土地面積:217.88㎡ (65.90坪) |
| 構造 | 木造瓦葺平家建 |
| 規模 | 平屋 |
| 築年月 | 昭和43年5月30日 |
| 設備 | 公共上下水道あり、ガス給湯器/ プロパンガス エアコン3台(2023年3月設置) ガス給湯器(2023年3月設置) 倉庫付き 庭付き |
| 備考 | ・建ぺい率60%、容積率200% ・学区:宮津小学校、宮津中学校 ・都市計画区域内 ・用途地域:第一種中高層住居専用地域 ・土砂災害警戒区/土石流に該当します。 ・洪水浸水想定区域:浸水深さ1.0m〜2.0mに該当します。 ・駐車場は縦列で2台駐車可能です。 ・敷地内の草木の落葉や剪定の管理は、自らの負担にて行ってください。 ・原則として自治会に加入とし、地域活動へもできる限り参加してください。 ・現状有姿(引き渡し前に草刈りとクリーニングをいたします) ・成約時、仲介手数料を頂戴いたします。 ・別荘Cの土地建物と一緒に購入して下さる方を優先いたします。(※別荘Cと同時購入の際は値引き有) ・旅館業許可を継承する場合は、丹後保健所に対して、旅館業営業承継承認申請(手数料 約7,000円)をすることが可能です。(要立会検査) ・温泉を継続して利用される場合は、権利継承料として247,500円(税込)が必要となります。(年間温泉更新料とは別に) ・温泉を継続して利用される場合は、温泉法に基づき、温泉利用許可申請(手数料 約42,000円)をすることが可能です。 ※各許認可の詳細や可否につきましては、買い主様の自己責任にてお願いいたします。 ・盛土規制法:宅地造成等工事規制区域に該当します。 |
| 担当事業者 | 事業者名:合同会社GURI 宅建業免許番号:京都府知事免許(1)第014592号 |





















