京都移住計画では、京都移住を希望する方からのご相談時は、じっくりと京都で実現させたいことやどんな暮らしがしたいかとお聞きした上で、物件探しをお手伝いさせていただいております。
物件探しについては、賃貸物件はもちろん、売買物件のご相談も可能ですので、今回は中古戸建の売買物件のご紹介をしたいと思います。

場所は、JR嵯峨野山陰線「花園駅」から徒歩8分、徒歩圏内には東映京都撮影所や太秦映画村をはじめ、広隆寺や妙心寺など、有名な寺社仏閣に囲まれたエリア。当物件の町名は何と平安時代の歌人・和泉式部の塚があったことに由来する「太秦和泉式部町」。
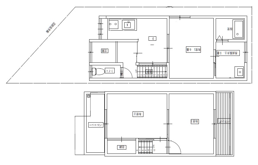
物件の間取りは3DKで、物件価格は1050万円です。

1Fにキッチンをふくめた水回りとダイニング、リビングとなる6帖の和室があります。


2Fは和室のお部屋が2つあります。


2Fの南側は日当たりのよいルーフバルコニーがあるので、お布団を干したり、植物を育てたり、思い思いのスペースに使えそうです。

こちらの物件は昭和47年に建てられた建物で、2024年ごろまで所有者さんのご親族が住んでいましたが、お引っ越しされた今、空き家のままにしておくのはいけないという思いから、売却することになりました。
全国的に様々な空き家問題が取り上げられていますが、このようにきちんと良きタイミングで次の方へバトンを引き継いでいただけると、このお家も喜んでいるのでは、と思います。
では周辺環境を見てみましょう。

あたりは昭和40〜50年代の建物が多く立ち並ぶ落ち着いた住宅街ですが、周辺にはいくつか近年(平成後期~令和)に建て替えられたのか、子育て世代が住んでいるとみられる比較的新しい住宅もあり、丸太町通りにはファミリーマンションも点在しています。
最寄り駅はJR嵯峨野山陰線「花園」駅ですが、京都市営地下鉄東西線「太秦天神川駅」から徒歩約15分ということもあり、京都市内中心部へのアクセスも悪くありません。


近くのスーパー等の商業施設は、徒歩5分圏内に「スーパーマツモト新丸太町店」「業務スーパー太秦店」「ダイソー京都太秦店」があり、ファミリーレストランやラーメン店などの外食チェーン、銀行、自転車店、携帯ショップ、フィットネスジム等も。若い世代の方からご高齢の方まで、多世代のニーズにフィットするような商業施設が多数あるのは嬉しいポイントですね。


物件は昭和47年に建てられたものですので、外壁・内装ともに手入れが必要な状況のため、ご購入される方にはリフォーム・リノベーションをおすすめします。
当物件にご興味をお持ちの方はお気軽にお声かけください。周辺環境についても一緒にご案内させていただきます。
▼右京区についてもっと見る!
https://kyoto-iju.com/?area=ukyo-ku
物件写真
物件詳細
| 物件名 | 右京区太秦和泉式部町戸建て |
|---|---|
| 賃料 | 【売買】1050万円 |
| 住所 | 京都市右京区太秦和泉式部町 |
| 交通 | JR嵯峨野山陰線「花園」駅徒歩8分 京都市営地下鉄東西線「太秦天神川」駅徒歩15分 |
| 面積 | 土地:46.93㎡ 建物:52.24㎡(登記簿上) |
| 構造 | 木造 |
| 規模 | 2階建て |
| 築年月 | 昭和47年5月 |
| 設備 | 都市ガス/電気/上水道/下水道 |
| 備考 | ・接道状況:西4m 私道・接面10.5m/南4m 私道・接面4m ・市街化区域 ・用途地域:第一種住居地域 ・建ぺい率60%・容積率160% ・学区:太秦小学校区、太秦中学校区 ・準防火地域 ・高度地区(15m第二種高度地区)、景観地区 ・駐車場:なし(自転車・バイクの駐輪は可) ・現状有姿(※図面と現状が異なる場合は現状を優先します) ・売主の契約不適合責任面積 ・増築未登記部部分(1階洗面所)約4.3㎡あります。この部分も売買対象に含みます。 ・改装を要します。 ・成約時、仲介手数料を頂戴いたします。 |
| 担当事業者 | 事業者名:Roomie 宅建業免許番号:京都府知事(1)第14452号 |


























